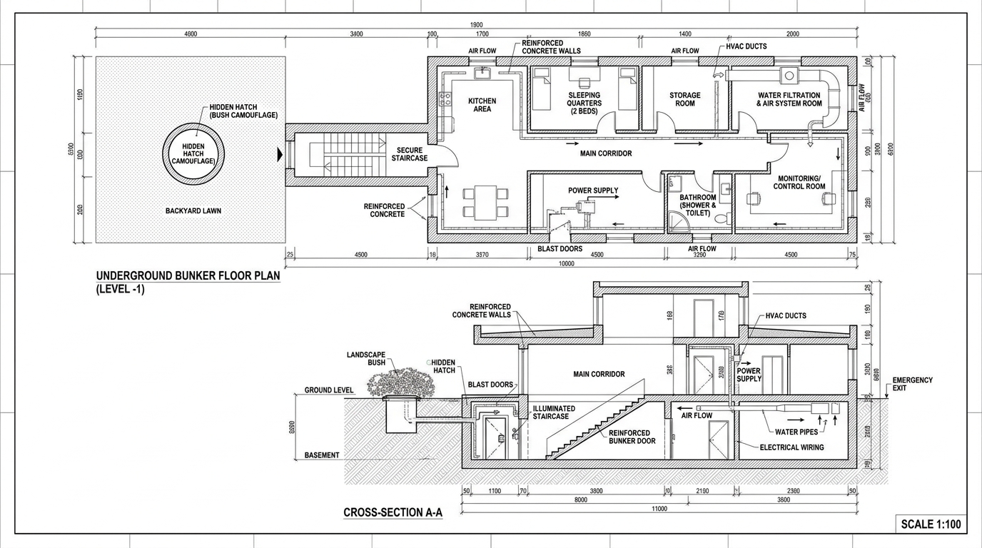
Beneath the calm surface of a perfectly landscaped backyard lies a new level of security, comfort, and smart design. This luxury underground bunker is seamlessly integrated into a modern home environment, remaining completely hidden until needed. Disguised under a clean, minimal lawn with decorative greenery, the entrance is nearly invisible—revealed only through a precision-engineered hatch that opens smoothly to a secure vertical access shaft.
Designed for homeowners who value both aesthetics and preparedness, this bunker combines high-end residential comfort with advanced safety features. The reinforced circular entry system is built from durable materials, ensuring protection against external threats while maintaining a sleek, unobtrusive look above ground. A fixed ladder leads down into a controlled underground space, engineered for long-term reliability and structural integrity.
Inside, the bunker can be customized into a fully functional living environment. From sleeping quarters and storage rooms to energy systems and water filtration, every element is designed for independence and efficiency. Integrated ventilation ensures fresh airflow, while insulation maintains stable temperatures year-round. Power systems such as battery stations and backup generators provide uninterrupted energy, supporting lighting, communication devices, and essential appliances.
What sets this concept apart is its balance between luxury and survival readiness. Unlike traditional bunkers, this design does not compromise the beauty of your home. The outdoor space remains elegant and usable, with no visible signs of what lies beneath. At the same time, it offers a reliable fallback solution in case of emergencies, natural disasters, or unexpected situations.
This type of bunker is ideal for modern homeowners seeking peace of mind without sacrificing style. It fits naturally into suburban or private properties, blending into the landscape while delivering a powerful layer of protection below. Whether used as a secure shelter, storage space, or private retreat, it represents a forward-thinking approach to safety and self-sufficiency.

In addition to its core structure, the bunker can be equipped with advanced smart systems that allow remote monitoring and control. From your phone or internal control panel, you can manage lighting, air filtration, temperature, and security access. Motion sensors and hidden cameras around the property can provide real-time awareness of your surroundings without drawing attention from the outside.
The interior layout can also be adapted to lifestyle needs. Some owners choose to include a compact kitchen, a small lounge area, or even a workspace, transforming the bunker into a comfortable underground extension of the home rather than just an emergency shelter. Sound insulation ensures complete privacy, while reinforced walls create a quiet, protected environment away from any external disturbances.
Water storage and purification systems can support extended Autonomous use, while modular storage solutions allow efficient organization of food, equipment, and supplies. Every detail is focused on maximizing usability within a compact footprint.
Ultimately, this luxury backyard bunker is not just about survival—it is about control, preparedness, and peace of mind. It offers a hidden advantage, giving you the confidence that no matter what happens above ground, you have a secure, well-designed space ready below.

Underground Living Corridor with Integrated Kitchen – Smart Comfort Below Ground
This underground corridor redefines what a modern bunker interior can be, combining architectural elegance with full everyday functionality. Designed with a smooth arched concrete structure, the space creates a clean, minimalist environment that feels more like a high-end apartment than a survival shelter. Soft integrated LED lighting follows the curves of the ceiling, providing warm, even illumination that eliminates the feeling of being underground.
At the heart of this corridor is a fully integrated kitchen zone. Compact yet highly efficient, it includes a modern cooktop, built-in oven, sink, and organized shelving for food supplies. Every element is positioned for maximum usability within a limited footprint, allowing residents to prepare meals comfortably without sacrificing space. Storage is optimized vertically, ensuring long-term food organization while maintaining a clean visual aesthetic.
The corridor itself serves as a central spine, connecting multiple rooms within the bunker. Reinforced doors lead to private areas such as sleeping quarters, storage rooms, or technical spaces. This layout allows for clear zoning and easy navigation, even during high-stress situations. The smooth concrete surfaces not only add durability but also improve hygiene and ease of maintenance.
Ventilation and air filtration systems are seamlessly integrated into the ceiling, ensuring continuous fresh airflow and a stable indoor climate. Acoustic insulation reduces echo and external noise, creating a quiet and controlled environment. Digital control panels allow monitoring of air quality, temperature, and system performance in real time.
What makes this space unique is its balance between survival functionality and everyday comfort. A soft seating area and clean interior design elements transform the corridor into a livable, welcoming environment rather than a purely technical space. It is designed for extended stays, where mental comfort is just as important as physical safety.
This underground corridor with kitchen represents a new generation of bunker design where efficiency, safety, and modern lifestyle seamlessly coexist beneath the surface.

This zone is designed as the operational core of long-term survival, combining organized storage with advanced life support technology. Every element is built for efficiency, reliability, and easy access, ensuring that essential resources such as food, water, and clean air are always available.
The storage system uses heavy-duty industrial shelving, allowing clear organization of canned food, dry supplies, and emergency reserves. Items are arranged for quick identification and access, reducing time and effort during critical situations. Large water containers are positioned along the structure, providing a stable reserve that integrates directly with the filtration system.
A central feature of this space is the high-performance air filtration system. Built with multiple filtration stages, it continuously purifies incoming air, removing dust, particles, and harmful contaminants. The system is designed to operate in a sealed environment, maintaining safe oxygen levels and air quality over extended periods. Integrated ductwork distributes clean air evenly across the bunker, ensuring consistent airflow in every section.
The water filtration system provides an additional layer of independence. Using advanced filters, it transforms stored or external water into safe drinking water. This setup supports both long-term storage and continuous purification, making it suitable for extended off-grid living without reliance on external sources.
Power is supported by portable energy stations and backup generators, ensuring that all critical systems remain operational at all times. The modular design allows expansion, meaning additional storage capacity or upgraded filtration units can be added as needed.
This zone is the foundation of a fully self-sufficient bunker, where smart organization meets essential technology to create a secure and sustainable living environment.


Monitoring and Control Room
This monitoring zone is the central command hub of the entire bunker, designed to provide full situational awareness and system control in real time. A multi-screen setup displays live surveillance feeds from the perimeter, entry points, and surrounding territory, allowing continuous visual monitoring of everything happening outside and inside the structure. Each screen is organized for clarity, giving instant access to cameras, motion sensors, and environmental data.
The workspace is built for long-term use, featuring an ergonomic desk, integrated control panels, and a clean cable-managed setup that keeps everything functional and distraction-free. From here, all critical systems can be managed: security locks, lighting, ventilation, power distribution, and backup energy reserves. The interface is intuitive, ensuring quick response even in high-pressure scenarios.
Above the monitoring screens, additional displays provide weather tracking and external conditions, helping to anticipate risks and make informed decisions. This is especially important in remote environments where conditions can change rapidly. The system is designed with redundancy, ensuring that even in case of partial failure, core monitoring capabilities remain operational.
Acoustic insulation and controlled lighting create a focused atmosphere, reducing fatigue during extended monitoring periods. This space is not just about security—it is about control, awareness, and confidence in any situation.

Bathroom and Shower Zone
The bathroom area is engineered to combine hygiene, durability, and modern comfort within a compact underground environment. The space features a fully enclosed shower zone with a rainfall-style head, designed to provide a full-featured and comfortable washing experience even during long-term stays underground. Water drainage is integrated seamlessly into the floor, ensuring cleanliness and easy maintenance.
A wall-mounted toilet and minimalist sink unit optimize space while maintaining a clean, modern aesthetic. Every surface is made from moisture-resistant materials, allowing the area to withstand constant humidity without degradation. Soft integrated lighting follows the curved ceiling, creating a warm and relaxing atmosphere that contrasts with the technical nature of the bunker.
One of the key elements of this zone is the visible water system infrastructure. Storage tanks, filtration units, and heating systems are all carefully organized and accessible for maintenance. This includes water purification stages that ensure safe, drinkable water at all times, as well as a reliable heating solution for consistent hot water supply.
Ventilation plays a critical role here, with dedicated airflow systems removing moisture and maintaining air quality. The result is a bathroom that feels dry, fresh, and comfortable, rather than confined or industrial.
This space demonstrates that even in a survival bunker, everyday routines like hygiene can remain at a high standard, supporting both physical health and psychological comfort over extended periods underground.

Emergency Exit to the Main House
This space serves as a secure secondary exit, seamlessly connecting the underground bunker to the main house above. Designed for both safety and discretion, the passage combines a reinforced bunker door with a clean, modern staircase that leads directly into the residential interior. The transition between the underground structure and the home is smooth, allowing fast and controlled movement in any situation.
The heavy-duty blast door acts as a primary protective barrier, capable of isolating the bunker completely when needed. Built from reinforced steel with secure locking mechanisms, it ensures that the underground area remains protected even if the upper level is compromised. At the same time, it is easy to operate from inside, allowing a quick exit without delays.
The staircase is designed with integrated LED lighting, providing clear visibility at all times, including during power outages or emergency conditions. Each step is evenly illuminated, reducing the risk of slipping or disorientation when moving quickly between levels. The clean architectural lines and minimalistic design make the transition feel like a natural extension of the house rather than a hidden technical passage.
Ventilation and air pressure systems are carefully balanced in this zone to prevent airflow contamination between the bunker and the main living space. This ensures that, even when the exit is used, the internal environment of the bunker remains stable and protected.
This emergency exit is more than just a backup route—it is a critical connection point that combines security, speed, and everyday convenience, allowing the bunker to function as both a hidden refuge and a fully integrated part of the home.

Estimated Cost of a Luxury Survival Bunker
A bunker of this caliber is not a simple underground shelter—it is a fully engineered private survival residence built to operate independently under extreme conditions. When designed with premium materials, advanced systems, and architectural quality comparable to luxury real estate, the cost rises significantly into a higher investment category.
The foundation begins with deep excavation, geotechnical analysis, and reinforced concrete construction designed to withstand pressure, moisture, and long-term structural stress. For a high-end build with full waterproofing, insulation, and seismic resistance, this phase alone typically ranges from $250,000 to $600,000+, depending on terrain and depth.
Engineering systems form the core of a premium bunker. This includes military-grade air filtration (NBC systems), advanced ventilation, water purification and storage, smart electrical infrastructure, and redundant power sources such as high-capacity battery systems, solar integration, and backup generators. These systems are designed for long-term autonomy and reliability, adding approximately $150,000 to $400,000+ to the total cost.
Interior design in a luxury bunker is where the project transforms from survival space into a livable environment. Custom kitchens, designer bathrooms, integrated lighting, acoustic treatment, and high-end materials elevate comfort to residential standards. Depending on finishes and customization, interiors can range from $150,000 to $500,000+.
Security and control systems are another major investment. Reinforced blast doors, biometric access, surveillance networks, monitoring rooms, and automated system control can add $80,000 to $250,000+. These features ensure full control, privacy, and protection in any scenario.
Specialized features such as hydroponic farming zones, medical rooms, storage vaults, and mechanical systems like vehicle lifts or hidden entry mechanisms further increase complexity. These additions can range from $100,000 to $300,000+, depending on scale and technology level.
When combining all elements, a true luxury bunker of this level typically falls within $800,000 to $2,000,000+, with elite custom projects exceeding even this range.
This investment reflects more than construction—it represents a self-sufficient, secure, and comfortable underground lifestyle designed to function flawlessly for decades, regardless of external conditions.


This is an architectural concept visualization and not a real construction project.









Leave a Reply