Concealed Backyard Shelter with Integrated Surface Camouflage

his hidden shelter is seamlessly integrated into a residential backyard, designed to remain completely invisible during everyday use. From the surface, the area functions as a normal outdoor patio with landscaping elements and utility equipment, requiring no visual compromises or structural clues.

The entrance is concealed beneath a reinforced surface hatch that blends naturally into the paved area. When closed, the shelter remains undetectable, maintaining the appearance of a standard backyard space. The hatch opens downward into a secure vertical access shaft equipped with a fixed ladder and interior lighting for safe and rapid entry.

Below ground, the shelter provides a protected, insulated space suitable for short- and mid-term occupancy. Concrete walls ensure structural stability and environmental protection, while controlled lighting creates a calm and usable interior atmosphere. The design prioritizes fast access, discretion, and reliability in emergency scenarios.

This type of shelter is ideal for urban or suburban environments where visibility, privacy, and functional concealment are critical. It allows occupants to move from daily life into a secure underground space within seconds—without drawing attention or altering the surrounding landscape.

Secure Living and Rest Area Inside the Shelter

This room is designed as a primary living and sleeping space within the shelter, combining comfort, functionality, and long-term reliability. The minimalist interior uses reinforced concrete walls and ceiling panels to provide structural protection, thermal stability, and sound insulation. Integrated linear lighting along the ceiling creates soft, evenly distributed illumination without visible fixtures, maintaining a calm and controlled atmosphere.

A full-size bed and compact seating area allow occupants to rest comfortably during extended stays. The layout prioritizes open floor space, ensuring freedom of movement while keeping essential elements within reach. Built-in shelving units store emergency supplies, power stations, and food reserves in an organized and easily accessible manner.

The ventilation system is fully integrated into the ceiling, ensuring continuous air circulation and temperature regulation without noise or visual clutter. Smooth flooring surfaces allow for easy cleaning and maintenance, supporting hygienic long-term use.

Overall, this room serves as a safe, quiet, and psychologically comfortable environment—designed not only for survival, but for rest, recovery, and daily living in a fully autonomous underground shelter.

Long-Term Supply Zone for One-Year Occupancy (Two People)

This dedicated storage area is designed to support two occupants for up to one year of autonomous living. The space is organized for maximum efficiency, accessibility, and long-term preservation of essential supplies. Reinforced shelving systems line both sides of the room, allowing clear categorization and rotation of food, water, and equipment.

Dry foods, canned goods, grains, legumes, and vacuum-sealed provisions are stored in sealed containers to protect against moisture, pests, and contamination. Large water reserves are positioned at floor level for stability, while bottled water and filtration-compatible containers ensure redundancy in hydration supply.

The room also integrates backup power units and charging systems, supporting lighting, communication devices, and small appliances. Controlled lighting and a clean, minimal layout provide excellent visibility and ease of inventory management, even during extended stays.

Ventilation ducts are discreetly integrated into the ceiling, maintaining air circulation and stable temperature conditions critical for long-term storage. The smooth flooring and moisture-resistant surfaces allow easy cleaning and hygienic operation over time.

This supply zone functions as the logistical backbone of the shelter—ensuring food security, resource control, and psychological confidence during long-term isolation. It is not simply storage, but a carefully planned system designed to sustain life comfortably and reliably for an extended period underground.

Advanced Ventilation System in the Bunker

A reliable ventilation system is one of the most critical elements of any underground bunker. In this shelter, ventilation is designed to ensure long-term autonomy, stable air quality, and safe living conditions even during extended periods of isolation.

The system uses industrial-grade metal air ducts integrated directly into the reinforced concrete structure. These ducts provide continuous airflow circulation while remaining fully protected from external damage, moisture, and pressure. All joints are sealed and vibration-isolated to maintain durability and quiet operation.

Fresh air is supplied through filtered intake channels, removing dust, pollen, smoke particles, and potential contaminants before entering the living space. At the same time, stale air is efficiently extracted, preventing carbon dioxide buildup and maintaining optimal oxygen levels throughout the bunker.

The ventilation layout is carefully planned to distribute air evenly across all zones, including sleeping areas, storage rooms, and technical compartments. This prevents stagnant air pockets and ensures consistent temperature and humidity control.

Integrated sound-dampening panels and concealed air grilles allow the system to operate almost silently, preserving a calm and comfortable atmosphere inside the bunker. Warm indirect lighting around the ventilation paths also provides easy visual inspection without exposing technical elements.

In emergency scenarios, the system can operate in sealed mode, maintaining internal air circulation while limiting external intake. This feature is essential for protection against smoke, dust storms, or other environmental hazards.

This ventilation solution combines industrial reliability, architectural minimalism, and survival-grade functionality, making the bunker suitable for safe, comfortable, and long-term underground living.

Secondary Emergency Exit to the House Basement

The bunker is equipped with a second independent emergency exit, providing an additional layer of safety and flexibility in critical situations. This exit leads directly into the basement of a private house, ensuring discreet and protected evacuation without exposure to the outside environment.

The passage connects the bunker corridor to the house basement through a short stairway and is secured by a reinforced armored door. The door is designed to withstand pressure, impact, and forced entry while remaining easy to operate from the inside for rapid evacuation.

This secondary route allows occupants to safely move from the underground shelter into a warm, secure indoor space, which is especially important during extreme weather, night-time evacuation, or situations where surface access is unsafe.

The transition zone is finished with durable concrete and natural wood elements, visually blending the bunker infrastructure with the residential basement. Integrated lighting and ventilation ensure clear visibility and air circulation during use.

By combining a hidden primary exit with a protected secondary exit into the house, the shelter offers redundancy, adaptability, and maximum survival reliability, meeting high standards for modern private bunkers.

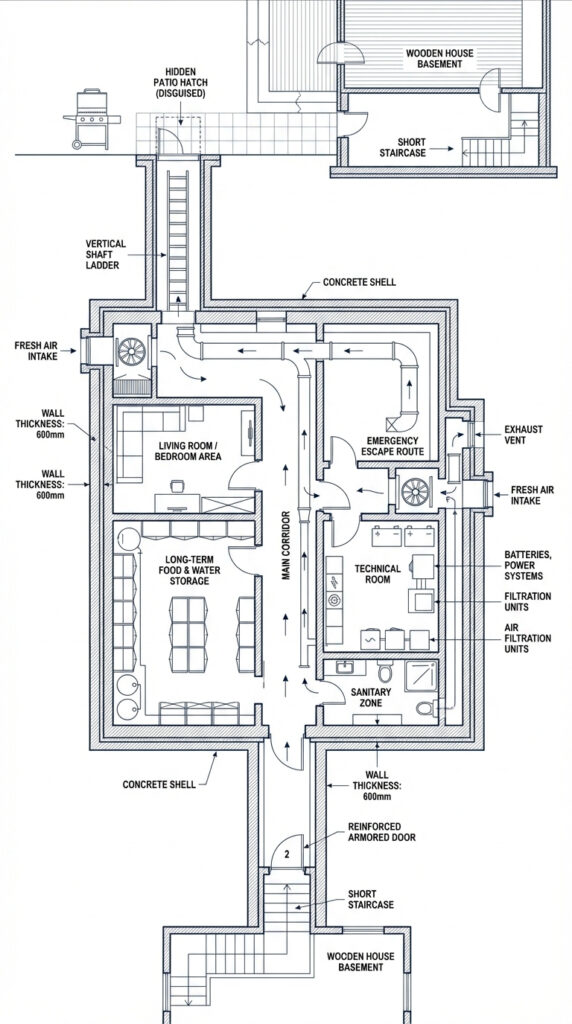
Underground Bunker Layout & Access System

This technical blueprint illustrates a fully integrated underground survival bunker designed for long-term and maximum safety. The layout is engineered to ensure efficient movement, clear zoning, and reliable access in both everyday use and emergency scenarios.

At the core of the bunker is a reinforced concrete living module connected by a central corridor. All key functional zones — living space, sleeping area, food storage, technical room, and sanitation — are arranged for optimal space utilization and rapid access. Ceiling-mounted ventilation ducts run along the corridor, distributing filtered air evenly throughout the entire structure.

Dual Entrance & Evacuation Concept

The design features two independent access points, providing redundancy and enhanced security.

Primary Entrance:
The main access is concealed outdoors within the backyard area and visually integrated into the landscape. Disguised as a patio or utility hatch near a barbecue zone, it leads to a vertical shaft equipped with a ladder, allowing direct entry into the bunker without drawing attention.

Secondary Entrance / Emergency Exit:
The second route connects the bunker to the basement of a private house through a reinforced corridor. A short stairway leads upward to a heavy armored door, opening into a wooden basement structure. This exit allows safe movement between the bunker and the house, even in high-risk conditions.

Safety, Ventilation & Structural Integrity

The blueprint highlights reinforced wall thickness, sealed door systems, and dedicated air intake and exhaust shafts. Ventilation flows are clearly separated to maintain clean air circulation and prevent contamination. All critical elements — doors, shafts, and escape routes — are positioned to remain functional even if one access point becomes blocked.

This bunker design combines discreet integration, redundancy, and professional engineering, making it suitable for long-term sheltering, emergency preparedness, and off-grid living.


This project is a conceptual design created for inspiration and architectural visualization. It is not a real construction project or a technical blueprint.
? Watch the video review on Facebook

One response to “Concealed Backyard Shelter with Integrated Surface Camouflage”

  1. I want 1 …

Leave a Reply