Perched high above a dramatic mountain gorge, this suspended log cabin combines raw wilderness aesthetics with thoughtful engineering designed for stability and safety. Built directly onto a reinforced wooden bridge and supported by heavy-duty steel suspension cables, the cabin appears to float between towering forest cliffs while remaining securely anchored to the surrounding terrain.
The structure is crafted from solid natural logs, preserving a traditional alpine character that blends seamlessly into the snowy evergreen landscape. From a distance, the cabin feels like a hidden outpost — modest in size yet purposefully positioned to offer protection, privacy, and breathtaking panoramic views over the canyon. The elevated placement keeps the living space away from wildlife paths, flooding risks, and unstable ground conditions commonly found in mountainous environments.
A reinforced suspension system distributes weight across multiple anchored cables connected to rock-secured mounting points. This design minimizes structural stress from wind, snow load, or seasonal movement while maintaining a stable walking experience across the attached bridge. The bridge itself serves as both access and structural extension, guiding visitors safely toward the entrance while enhancing the feeling of isolation and immersion in nature.
The compact cabin layout focuses on efficiency and warmth. Thick timber walls provide natural insulation, while a wood-burning stove chimney rising through the roof ensures reliable heating during cold mountain conditions. Snow resting gently on the roof highlights the cabin’s ability to function comfortably even in harsh winter environments.
Large surrounding forests act as a natural wind barrier, and the elevated position allows uninterrupted airflow and scenic visibility without sacrificing security. Every element — from the rope railings to the iron hardware on the door — reinforces the idea of a rugged yet carefully designed retreat built for endurance rather than luxury excess.
This suspended cliff cabin represents a unique approach to remote living: a balance between traditional craftsmanship and structural ingenuity. Instead of fighting the landscape, the design works with it, transforming a dangerous gorge into a protected and unforgettable living space suspended safely above the wilderness.


Building a Suspended Cliff Cabin — Construction Process Above the Gorge
Constructing a cabin above a mountain gorge requires far more than traditional building techniques. Every stage of this project was carefully planned to combine engineering precision with practical craftsmanship, ensuring the structure could safely exist in one of the most challenging environments imaginable.
The process began with the installation of a reinforced suspension bridge system anchored directly into solid rock on both sides of the canyon. Heavy-duty steel cables were tensioned and secured using industrial-grade mounts designed to withstand constant load, wind pressure, and seasonal weather changes. This cable framework became the primary structural backbone supporting both the walkway and the future cabin.
Once the suspension system was stabilized, builders assembled the wooden bridge platform piece by piece. Thick timber beams were installed across the span, creating a rigid base capable of distributing weight evenly along the cables. Working at height required coordinated teamwork, safety harnesses, and precise positioning to maintain balance while assembling the structure above open space.
The cabin frame was then constructed directly on the suspended platform. Craftsmen formed a curved log structure using solid timber sections, reinforced with steel bands that help maintain shape and structural integrity. This hybrid method blends traditional log-building techniques with modern reinforcement, allowing the cabin to remain stable despite movement caused by wind or temperature shifts.
After the main shell was completed, roof panels and insulation layers were added to protect against snow accumulation and moisture. The chimney and heating system were installed early to ensure reliable warmth in cold mountain conditions. Exterior hardware, doors, and rope railings were fitted last, finalizing both safety and visual character.
Throughout construction, the suspension cables remained under constant load monitoring to guarantee proper tension and alignment. Each phase was completed gradually, allowing the structure to settle naturally before additional weight was added.
The result is a compact yet remarkably strong cabin that appears to float above the gorge — a structure born from careful engineering, skilled manual work, and respect for the surrounding landscape. Rather than forcing construction onto unstable terrain, the project transforms the airspace above the canyon into a secure and functional living environment.

Compact Bathroom Entrance — Shower and Toilet Inside the Suspended Cabin
Immediately upon entering the cabin, visitors step into a thoughtfully designed compact bathroom space that combines both a shower and toilet in a highly efficient layout. This entrance zone serves as a practical transition area between the outdoor mountain environment and the warm interior living space.
The shower area is built using durable materials suited for constant moisture and changing temperatures. Corrugated metal wall panels protect the structure from humidity while adding a rugged, functional aesthetic that complements the cabin’s natural wood interior. A raised wooden slat floor allows water to drain efficiently, helping keep the space dry and comfortable after use.
Next to the shower, a compact toilet system is integrated into a wooden enclosure that maintains privacy without reducing available space. The use of natural timber surfaces softens the technical elements of the bathroom and keeps the design consistent with the rest of the cabin’s warm interior atmosphere.
A small window provides natural light and ventilation, while carefully positioned hooks and shelving allow towels and essentials to remain organized without cluttering the limited footprint. The layout ensures that every centimeter is used efficiently, making the bathroom fully functional despite its minimal size.
Positioning the bathroom directly at the entrance also helps maintain cleanliness throughout the cabin, allowing occupants to dry off or change immediately after returning from the snowy forest or mountain surroundings. The result is a simple yet highly practical solution that blends comfort, durability, and smart spatial planning within a compact suspended living space.

Living Area — Warm and Functional Interior Above the Canyon
The main living area of the suspended cabin is designed to deliver comfort, practicality, and a strong connection to the surrounding mountain landscape. Built inside a rounded log structure, the interior follows the natural curve of the cabin walls, creating a cozy and protected atmosphere while maximizing usable space.
A compact sleeping zone sits along one side of the cabin, featuring layered bedding and thermal blankets that provide warmth during cold mountain nights. The low-profile layout keeps the space open and uncluttered, allowing easy movement throughout the interior despite the cabin’s compact dimensions.
At the center of the living area, a wood-burning stove serves as both a heating source and a visual focal point. Its placement near the panoramic window allows occupants to enjoy the warmth of the fire while overlooking the dramatic canyon and forest scenery outside. The chimney system is carefully routed through the structure to ensure safe ventilation without compromising the cabin’s structural integrity.
Along the wall, a small kitchenette provides essential cooking functionality. A gas stove, compact storage shelves, and water containers are integrated into a simple wooden workspace, allowing meals to be prepared efficiently even in remote conditions. Power stations and energy units are positioned nearby, supplying electricity for lighting, small appliances, and electronic devices.
Large panoramic glazing transforms the living area into an observation point above the gorge, filling the cabin with natural light during the day while maintaining a sense of shelter and privacy. The combination of raw timber textures, warm lighting, and practical equipment creates a balanced environment where survival functionality meets everyday comfort.
This living space demonstrates how thoughtful design can turn a compact suspended structure into a fully usable home environment, capable of supporting extended stays while maintaining a strong connection to nature.

A Compact Mountain Retreat on Steel Cables
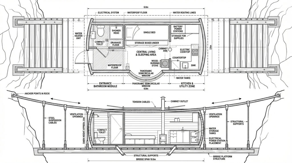
Built high above a deep forest canyon, this suspended log cabin combines traditional craftsmanship with engineered cable support to create a safe and fully livable mountain shelter. The structure sits directly on a reinforced bridge platform anchored into rock on both sides of the gorge, while multiple steel cables stabilize the cabin and protect it from movement caused by wind, snow, or terrain instability. This elevated placement keeps the home away from ground moisture, wildlife paths, and landslide risks while offering panoramic views across the surrounding mountains and evergreen forest. The construction process begins with a strong suspended walkway, after which builders assemble the rounded log frame directly on the platform, forming a compact barrel-shaped cabin designed for strength, insulation, and efficient weight distribution. Inside, the entrance leads into a small combined bathroom with a toilet and shower, finished with natural wood surfaces and durable metal panels in wet areas, creating a practical yet warm interior.
The main living space serves as both sleeping and relaxation area, featuring a cozy bed positioned along curved timber walls and a large panoramic window overlooking the canyon, allowing natural light to fill the cabin throughout the day. A wood-burning stove provides reliable heating and creates a comfortable atmosphere during cold mountain weather, while nearby storage keeps firewood organized and accessible. The kitchen zone includes an electric cooktop, compact workspace, cookware storage, and integrated water tanks hidden beneath the counter, allowing simple meal preparation within a minimal footprint. Portable power stations supply electricity for lighting and appliances, keeping the interior functional while maintaining a clean and uncluttered layout. Every element of the cabin is designed to maximize space efficiency while preserving comfort, turning a narrow suspended structure into a complete living environment. The result is a unique mountain dwelling that blends engineering and nature, offering security, warmth, and breathtaking scenery from a home suspended safely above the canyon.




A Compact Mountain Retreat on Steel Cables
This suspended canyon cabin shows how compact design and smart engineering can turn even the most extreme locations into a comfortable living space. Built directly onto a reinforced bridge and secured with steel suspension cables, the structure combines safety, efficiency, and a warm natural atmosphere. Despite its small size, the cabin includes everything needed for everyday living — a sleeping area, kitchen, heating system, and a compact bathroom module — all carefully integrated into a solid log construction. Projects like this demonstrate how modern off-grid architecture continues to evolve, blending traditional materials with practical solutions for remote environments. Explore more photos, layout details, and the full concept breakdown on our website.










Leave a Reply